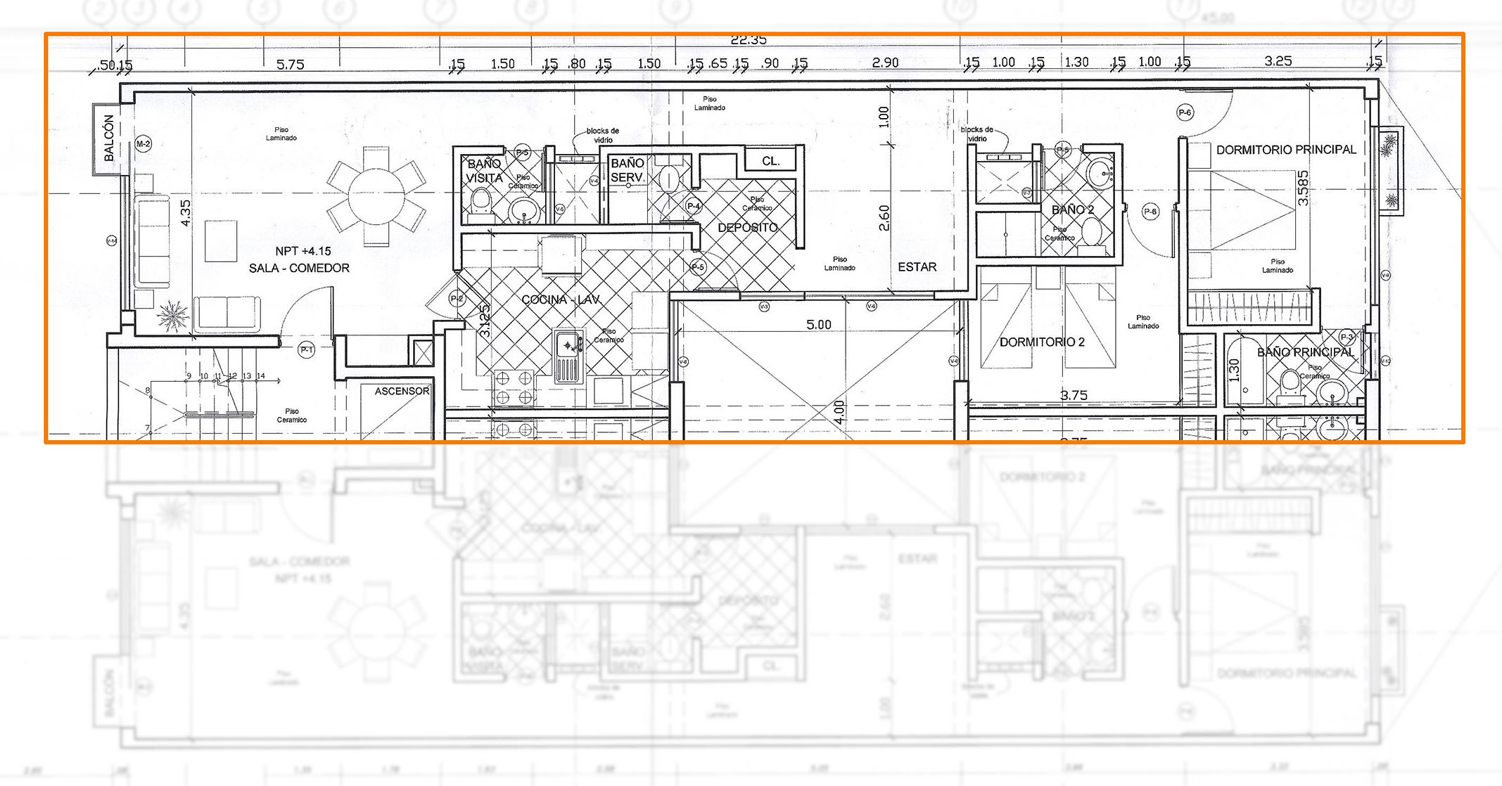
Resumen del inmueble
En corto...
2 dormitorios. Largo pasadizo. Excelente distribución. 1 estacionamiento con depósito.
Edificio de 13 departamentos, áreas comunes (terraza en piso 6, recepción, jardín posterior), portería con CCTV.
Amigable mantenimiento mensual.
Características principales
- Área: 111 m²
- 2 dormitorios
- Dormitorio principal con baño incorporado
- 3.5 baños
- Cocina con refrigeradora, microondas, horno a gas (balón)
- Lavandería equipada con tendal
- Sala con sofá 3 cuerpos, sillón, mesa de comedor y central, bargueño
- Salita con estación central, repisas
- 1 estacionamiento
- 1 depósito
- Áreas comunes: terraza (piso 6), recepción, jardín posterior
- Portería y CCTV
- Ascensor
- Año de construcción: 2007
Plano — corte de planta
Fotos
Haz clic sobre la imagen para ampliar
Ubicación
Cerca al Óvalo Gutiérrez: colegios, cine, parroquias, parques, restaurantes.. a tiro de piedra.
Acceso rápido a Av. Santa Cruz, Angamos, Arequipa, Vía Expresa, Petit Thouars, Comandante Espinar.